Details
Castle Street, Fareham, PO16
Offers over £225,000
Description
We are pleased to welcome to the market this two bedroom first floor apartment located in the popular over 55's development of Boxtree Court, Castle Street, Portchester. The apartment comes with residents parking.There is a spacious lounge diner, modern fitted kitchen, family bathroom and two bedrooms in total, the primary being a large double.Externally there are beautiful communal gardens to the rear and parking for residents to the side of the building. This works on a first come first serve basis. Portchester Castle is a stones throw away and you are also a short walk from Portchester Village shops.The lease is 101 years and the property is being offered with NO FORWARD CHAIN. For more information or to arrange a viewing please call Castles today.
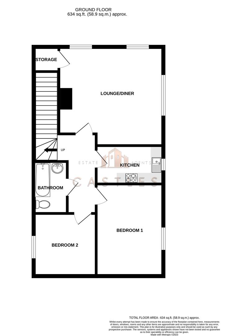
LOUNGE DINER (4.3 x 4.4 (14'1" x 14'5"))
KITCHEN (3.0 x 1.7 (9'10" x 5'6"))
BATHROOM (1.5 x 2.3 (4'11" x 7'6"))
BEDROOM ONE (3.0 x 4.1 (9'10" x 13'5"))
BEDROOM TWO (2.8 x 2.8 (9'2" x 9'2"))
Financial Services
If you are looking to get a comparison on your mortgage deal then do let us know as we can put you in touch with some independent mortgage advisors that would be happy to help. It is always worth a last minute comparison before you purchase a property as the current deals can change weekly.
Solicitors
If you are looking for a solicitor to handle the conveyancing process then do let us know as we can point you in the direction of some local, well recommended companies that would be happy to help and provide you with a quote.
Anti Money Laundering
Castles Estate Agents have a legal obligation to complete anti-money laundering checks. Please note the AML check includes taking a copy of the two forms of identification for each purchaser. A proof of address and proof of name document is required. Please note we cannot put forward an offer without the AML check being completed.
Lease Information
Ground Rent: £50 Per Annum
Service Charge: £1382.34 Per Annum
Lease Length: 101 Years Remaining
* Please be aware this information has been provided to us by the seller of the property to the best of their knowledge and will be clarified specifically by your solicitor during the conveyancing process *
Viewing
Please contact us on 02394 318899 if you wish to arrange a viewing appointment for this property, or require further information.
Energy Performance Certificate
Click here to view the Energy Efficiency Rating and Environmental Impact Rating for this property.
Disclaimer
Castle Estates - PO16 endeavour to maintain accurate depictions of properties in Virtual Tours, Floor Plans and descriptions, however, these are intended only as a guide and purchasers must satisfy themselves by personal inspection.
We are pleased to welcome to the market this two bedroom first floor apartment located in the popular over 55's development of Boxtree Court, Castle Street, Portchester. The apartment comes with residents parking.There is a spacious lounge diner, modern fitted kitchen, family bathroom and two bedrooms in total, the primary being a large double.Externally there are beautiful communal gardens to the rear and parking for residents to the side of the building. This works on a first come first serve basis. Portchester Castle is a stones throw away and you are also a short walk from Portchester Village shops.The lease is 101 years and the property is being offered with NO FORWARD CHAIN. For more information or to arrange a viewing please call Castles today.
LOUNGE DINER (4.3 x 4.4 (14'1" x 14'5"))
KITCHEN (3.0 x 1.7 (9'10" x 5'6"))
BATHROOM (1.5 x 2.3 (4'11" x 7'6"))
BEDROOM ONE (3.0 x 4.1 (9'10" x 13'5"))
BEDROOM TWO (2.8 x 2.8 (9'2" x 9'2"))
Financial Services
If you are looking to get a comparison on your mortgage deal then do let us know as we can put you in touch with some independent mortgage advisors that would be happy to help. It is always worth a last minute comparison before you purchase a property as the current deals can change weekly.
Solicitors
If you are looking for a solicitor to handle the conveyancing process then do let us know as we can point you in the direction of some local, well recommended companies that would be happy to help and provide you with a quote.
Anti Money Laundering
Castles Estate Agents have a legal obligation to complete anti-money laundering checks. Please note the AML check includes taking a copy of the two forms of identification for each purchaser. A proof of address and proof of name document is required. Please note we cannot put forward an offer without the AML check being completed.
Lease Information
Ground Rent: £50 Per Annum
Service Charge: £1382.34 Per Annum
Lease Length: 101 Years Remaining
* Please be aware this information has been provided to us by the seller of the property to the best of their knowledge and will be clarified specifically by your solicitor during the conveyancing process *
Viewing
Please contact us on 02394 318899 if you wish to arrange a viewing appointment for this property, or require further information.
Energy Performance Certificate
Click here to view the Energy Efficiency Rating and Environmental Impact Rating for this property.
Disclaimer
Castle Estates - PO16 endeavour to maintain accurate depictions of properties in Virtual Tours, Floor Plans and descriptions, however, these are intended only as a guide and purchasers must satisfy themselves by personal inspection.
Features
- OVER 55'S DEVELOPMENT
- FIRST FLOOR APARTMENT
- TWO BEDROOMS
- COMMUNAL GARDENS
- OFF ROAD RESIDENTS PARKING
- CLOSE TO PORTCHESTER CASTLE
- 101 YEAR LEASE
- CLOSE TO LOCAL SHOPS
- NO FORWARD CHAIN
- POPULAR DEVELOPMENT
Share
Request aValuation
If you are thinking of selling a property contact us today for a free valuation

