Details
Bushy Mead, Waterlooville, PO7
Offers over £400,000
Description
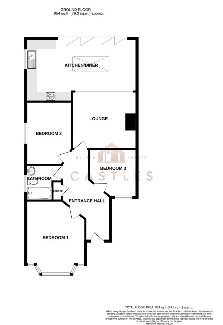
We are pleased to welcome to the market this exceptional three bedroom semi detached bungalow with off road parking for two cars in the popular Widley location of Bushy Mead. This property is being sold with No forward Chain.This property has undergone a full transformation by the current owners to a wonderful standard. A rear extension has been added with bi-folds and roof lantern offering an open plan lounge - kitchen - diner all in one. There are three bedrooms in total and a modern family bathroom.Externally there is off road parking to the front for two vehicles. Side access is available and rear access leading to the garden which is a generous size and features paved patio areas and fresh laid turf.For more information or to arrange a viewing please call Castles today.
LOUNGE (3.8 x 3.4 (12'5" x 11'1"))
KITCHEN/DINER (6.3 x 3.1 (20'8" x 10'2"))
BATHROOM (2.1 x .21 (6'10" x .68'10"))
BEDROOM 1 (3.5 x 4.3 (11'5" x 14'1"))
BEDROOM 2 (2.7 x 3.7 (8'10" x 12'1"))
BEDROOM 3 (2.8 x 2.8 (9'2" x 9'2"))
Financial Services
If you are looking to get a comparison on your mortgage deal then do let us know as we can put you in touch with some independent mortgage advisors that would be happy to help. It is always worth a last minute comparison before you purchase a property as the current deals can change weekly.
Solicitors
If you are looking for a solicitor to handle the conveyancing process then do let us know as we can point you in the direction of some local, well recommended companies that would be happy to help and provide you with a quote.
Anti Money Laundering
Castles Estate Agents have a legal obligation to complete anti-money laundering checks at our cost via a portal called Credas. Please note the Credas AML check includes taking a copy of identification for each purchaser, a proof of address and proof of name document is required. Please note we cannot agree a transaction without the Credas AML check being completed and there will be a small admin fee of £25+VAT charged to the successful purchasers to complete these legally required checks.
Viewing
Please contact us on 02394 318899 if you wish to arrange a viewing appointment for this property, or require further information.
Energy Performance Certificate
Click here to view the Energy Efficiency Rating and Environmental Impact Rating for this property.
Disclaimer
Castle Estates - PO16 endeavour to maintain accurate depictions of properties in Virtual Tours, Floor Plans and descriptions, however, these are intended only as a guide and purchasers must satisfy themselves by personal inspection.
We are pleased to welcome to the market this exceptional three bedroom semi detached bungalow with off road parking for two cars in the popular Widley location of Bushy Mead. This property is being sold with No forward Chain.This property has undergone a full transformation by the current owners to a wonderful standard. A rear extension has been added with bi-folds and roof lantern offering an open plan lounge - kitchen - diner all in one. There are three bedrooms in total and a modern family bathroom.Externally there is off road parking to the front for two vehicles. Side access is available and rear access leading to the garden which is a generous size and features paved patio areas and fresh laid turf.For more information or to arrange a viewing please call Castles today.
LOUNGE (3.8 x 3.4 (12'5" x 11'1"))
KITCHEN/DINER (6.3 x 3.1 (20'8" x 10'2"))
BATHROOM (2.1 x .21 (6'10" x .68'10"))
BEDROOM 1 (3.5 x 4.3 (11'5" x 14'1"))
BEDROOM 2 (2.7 x 3.7 (8'10" x 12'1"))
BEDROOM 3 (2.8 x 2.8 (9'2" x 9'2"))
Financial Services
If you are looking to get a comparison on your mortgage deal then do let us know as we can put you in touch with some independent mortgage advisors that would be happy to help. It is always worth a last minute comparison before you purchase a property as the current deals can change weekly.
Solicitors
If you are looking for a solicitor to handle the conveyancing process then do let us know as we can point you in the direction of some local, well recommended companies that would be happy to help and provide you with a quote.
Anti Money Laundering
Castles Estate Agents have a legal obligation to complete anti-money laundering checks at our cost via a portal called Credas. Please note the Credas AML check includes taking a copy of identification for each purchaser, a proof of address and proof of name document is required. Please note we cannot agree a transaction without the Credas AML check being completed and there will be a small admin fee of £25+VAT charged to the successful purchasers to complete these legally required checks.
Viewing
Please contact us on 02394 318899 if you wish to arrange a viewing appointment for this property, or require further information.
Energy Performance Certificate
Click here to view the Energy Efficiency Rating and Environmental Impact Rating for this property.
Disclaimer
Castle Estates - PO16 endeavour to maintain accurate depictions of properties in Virtual Tours, Floor Plans and descriptions, however, these are intended only as a guide and purchasers must satisfy themselves by personal inspection.
Features
- FULLY REFURBISHED
- THREE BEDROOMS
- REAR EXTENSION
- OFF ROAD PARKING
- BI-FOLDS & ROOF LANTERN
- SEMI DETACHED BUNGALOW
- WIDLEY LOCATION
- GENEROUS REAR GARDEN
- OPEN PLAN LIVING
- NO FORWARD CHAIN
Share
Request aValuation
If you are thinking of selling a property contact us today for a free valuation

